Order Matter

as found

009

Frame Seongsu

  • Seoul, South Korea, 2024
  • Renovation

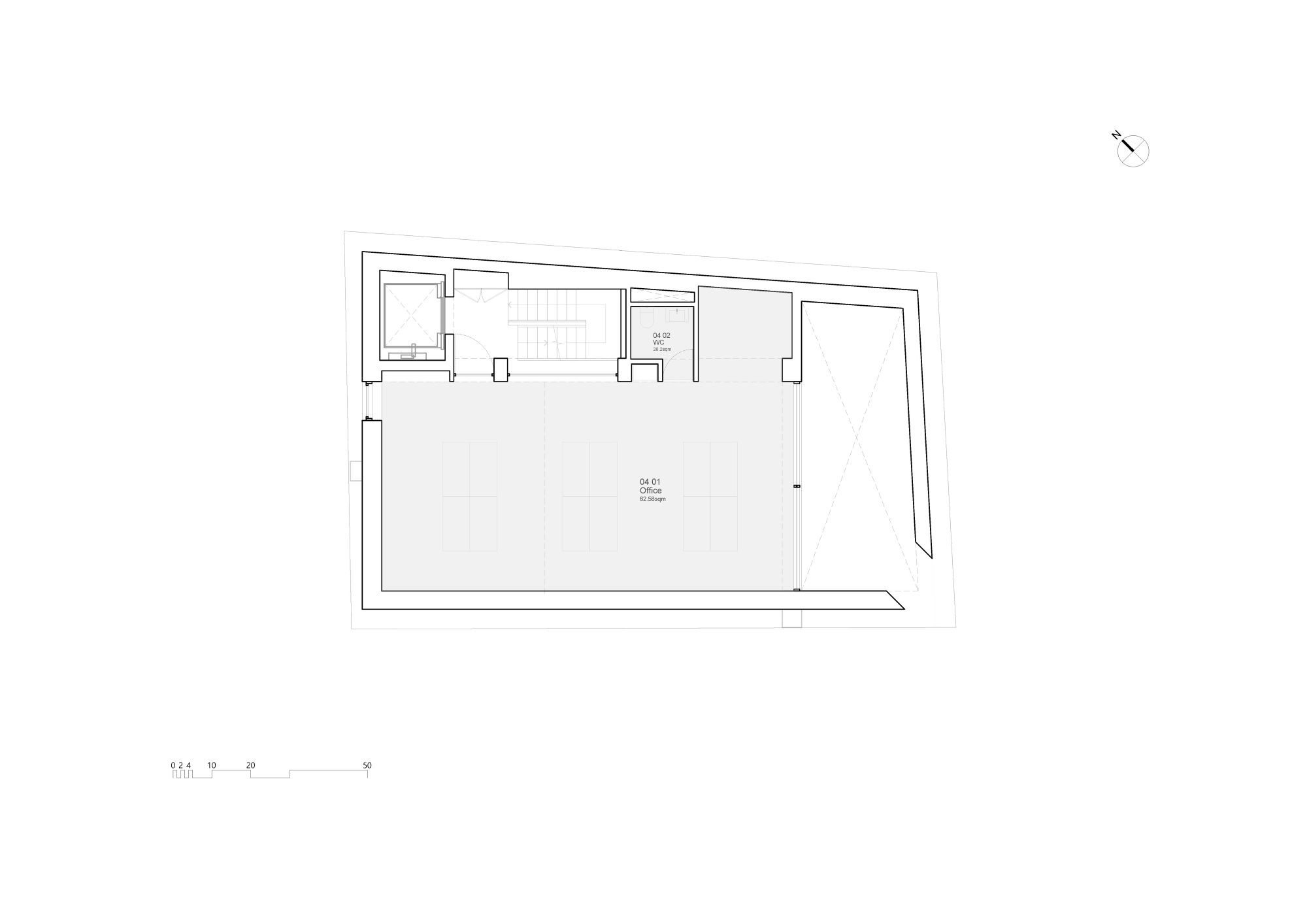
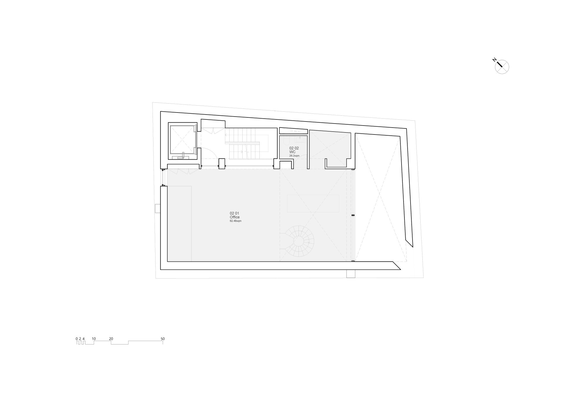
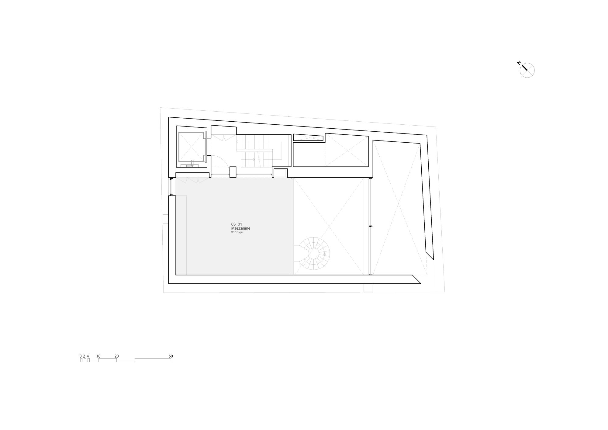
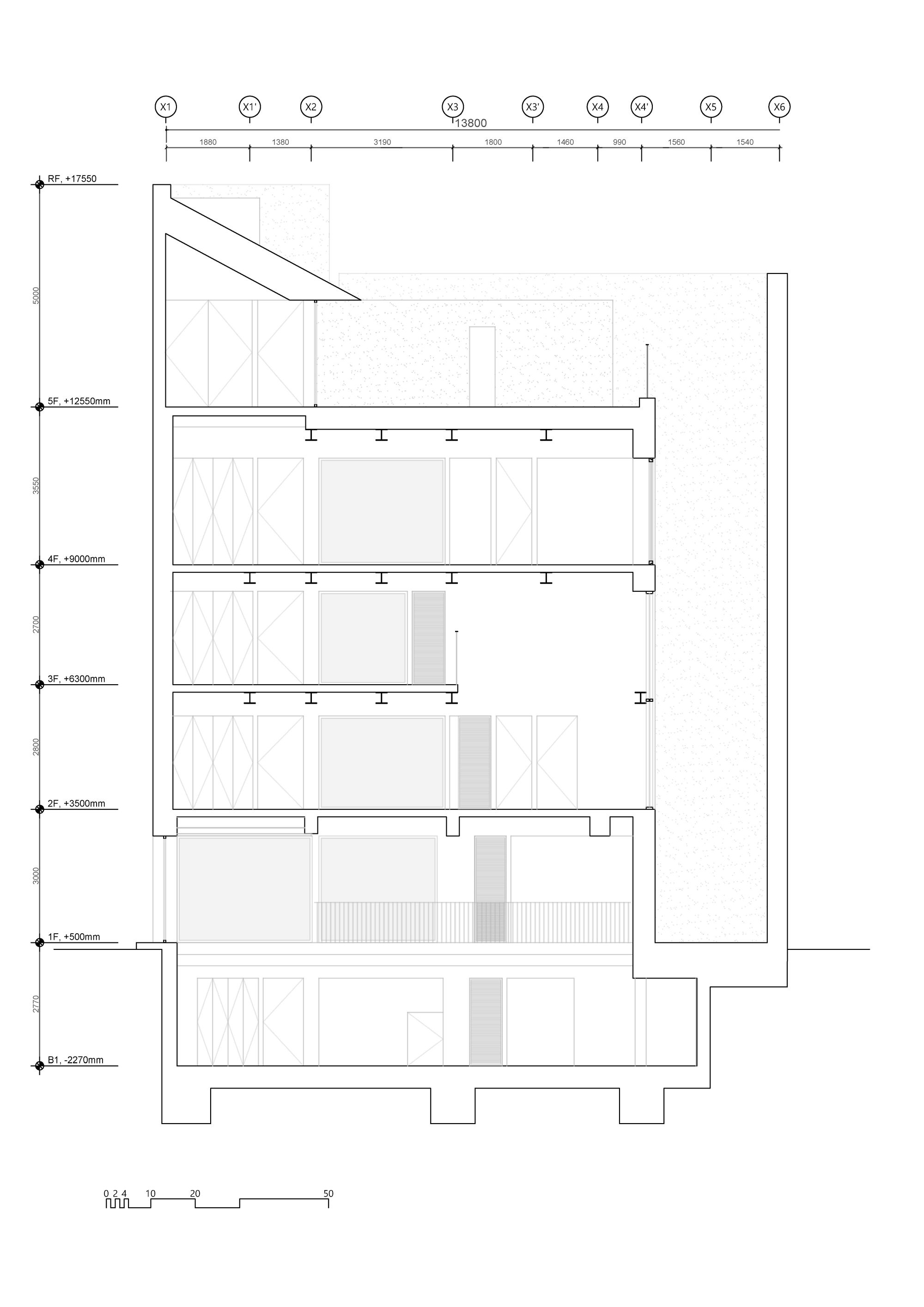
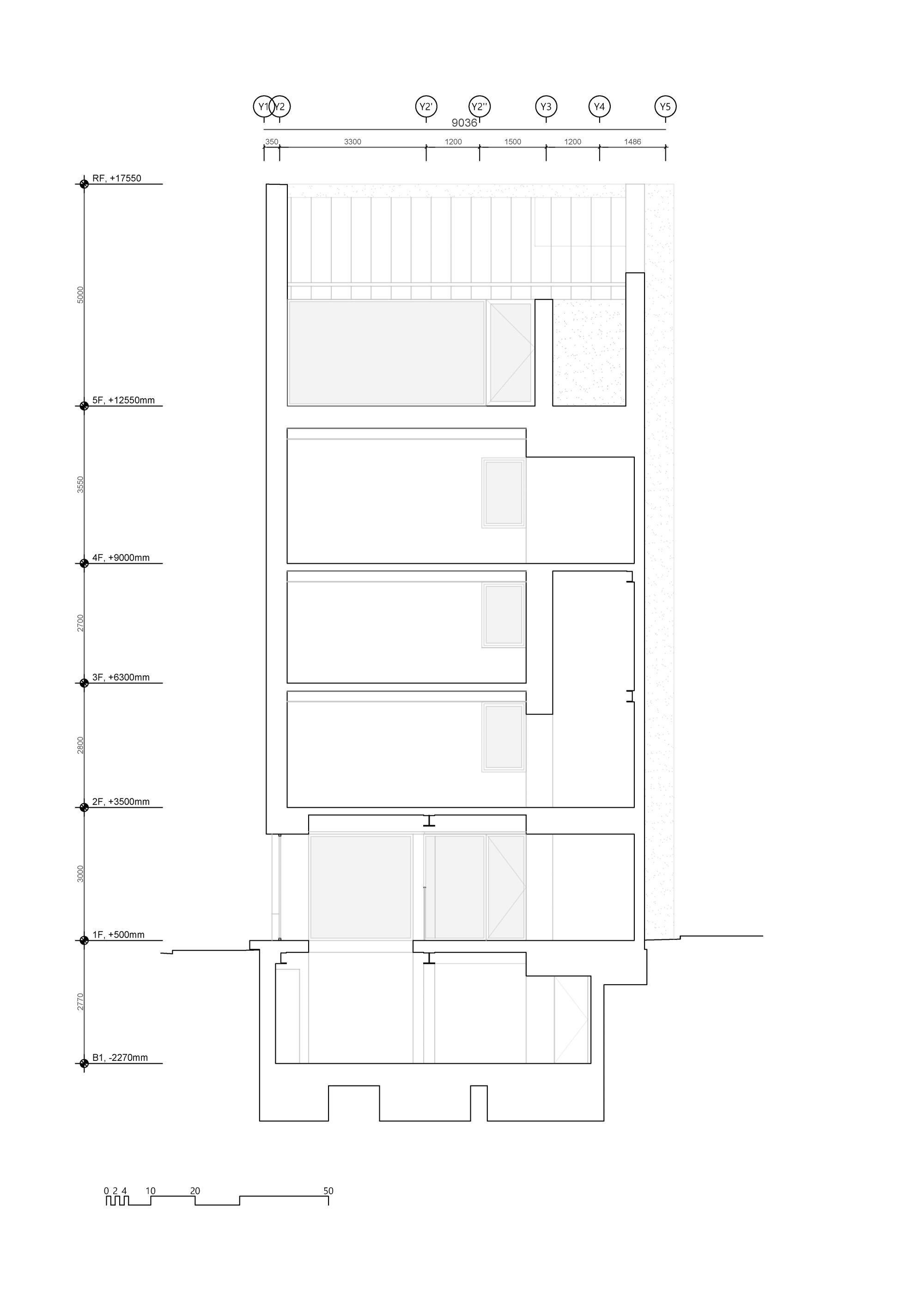
Seongsu Renovation is a mixed-use building renovation located in the heart of Seoul. The design carefully carves out a series of voids within the existing concrete structure, creating spatial frames that reveal the building’s layered history while opening new visual and physical connections.

Along the street frontage, a sequence of framed glazed openings at ground level invites views into a large internal void—drawing the gaze downward and offering a glimpse into the reimagined interior. Entry is marked by a slender, five-storey-high vertical slit that cuts through the façade, naturally pulling visitors inward and upward through its dramatic scale and proportion.

  • →