Order Matter

as found

008

Raw House

  • Seoul, South Korea, 2025
  • New Build

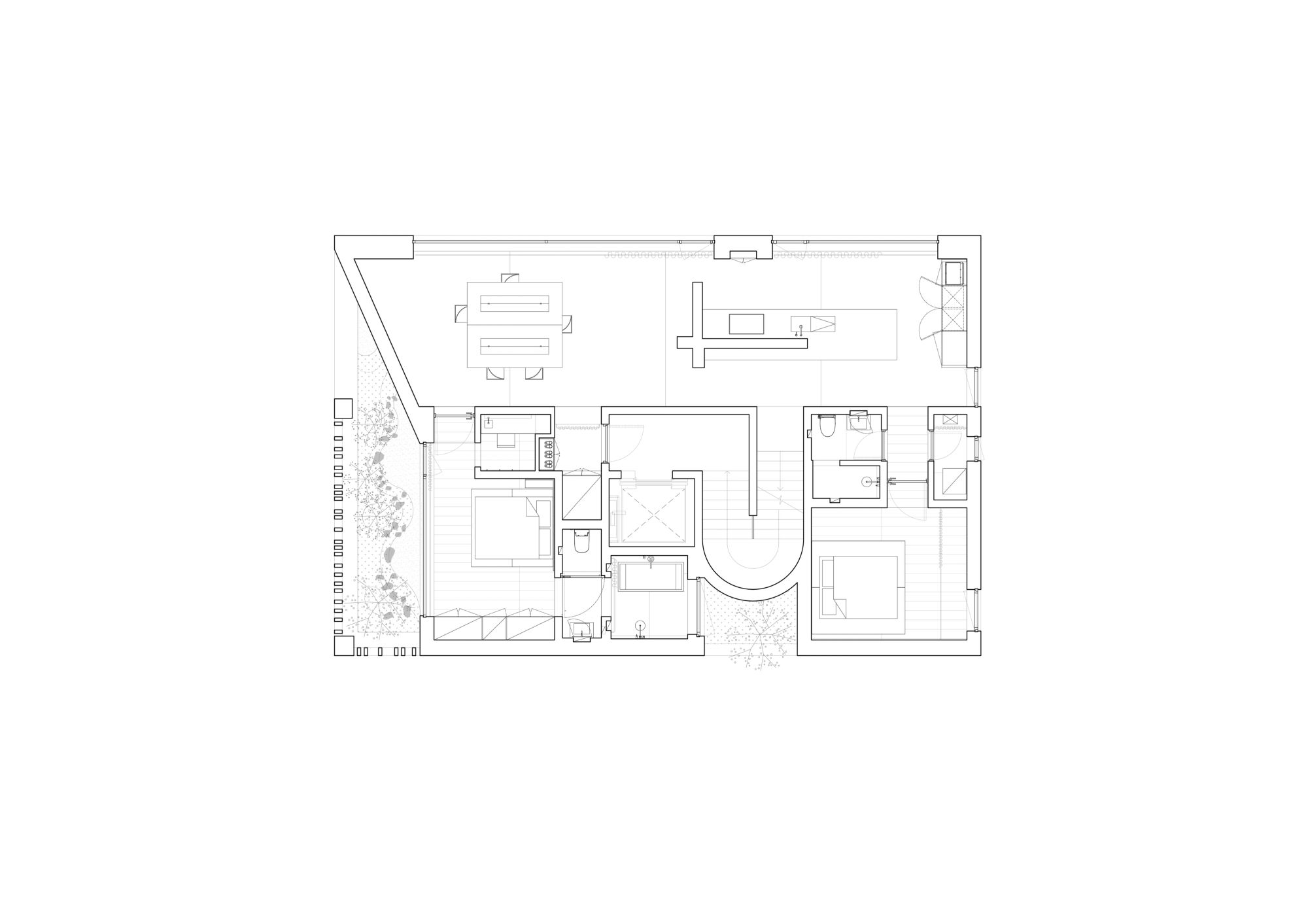
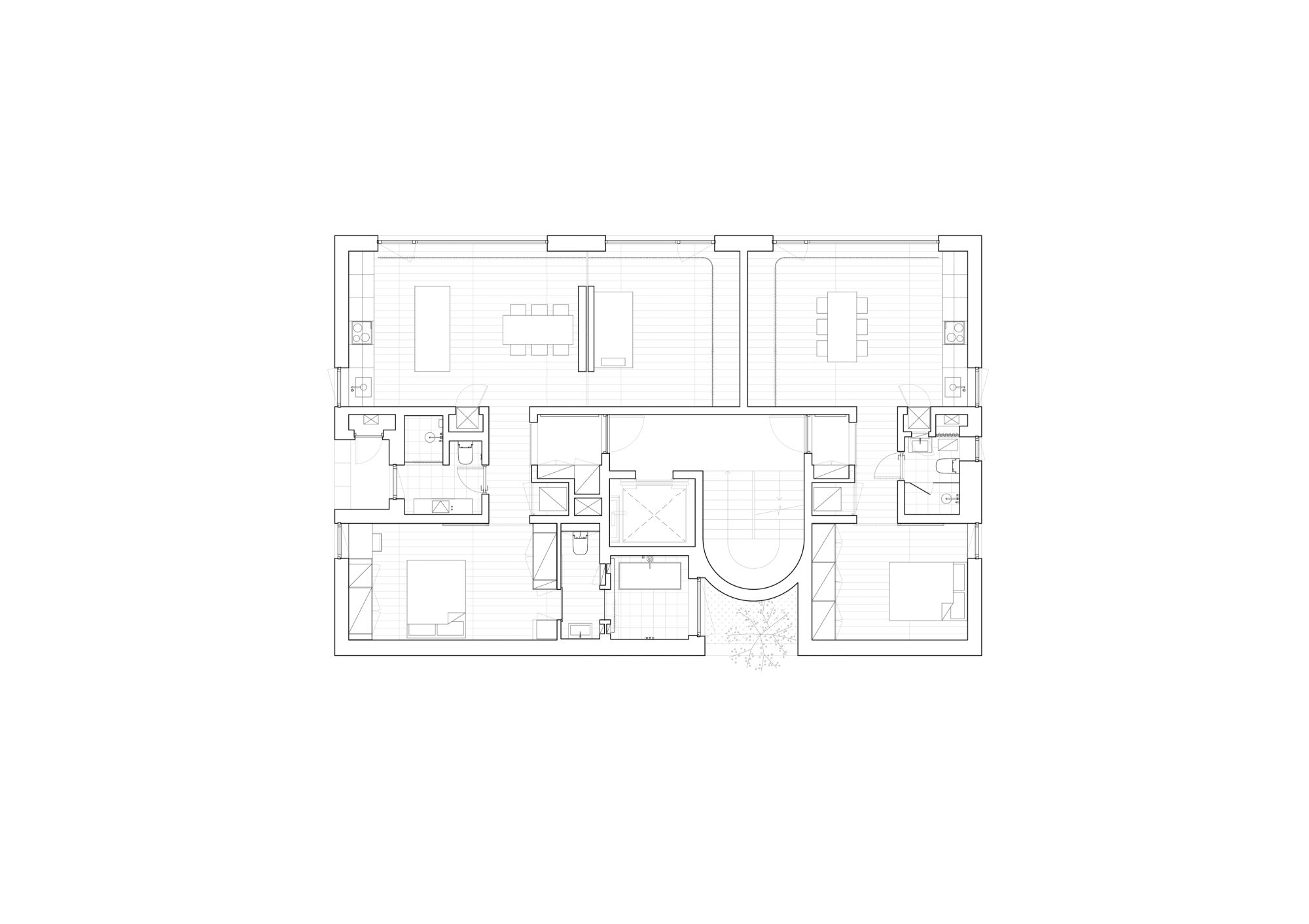
Raw House is a mixed-use development located on the East side of Seoul, South Korea, designed to harmonize with its natural and urban surroundings. The project includes an office, residential flats, and a penthouse. Its southern façade frames expansive views of the surrounding lush foliage, inviting nature into the interiors, while the northern façade takes a more reserved approach, creating a buffer from the street. This contrast highlights the project’s tectonic design, with the bold materiality and clean lines establishing a strong architectural presence that balances openness and privacy.

Photography by Simone Bossi.

  • →