Order Matter
as found
006
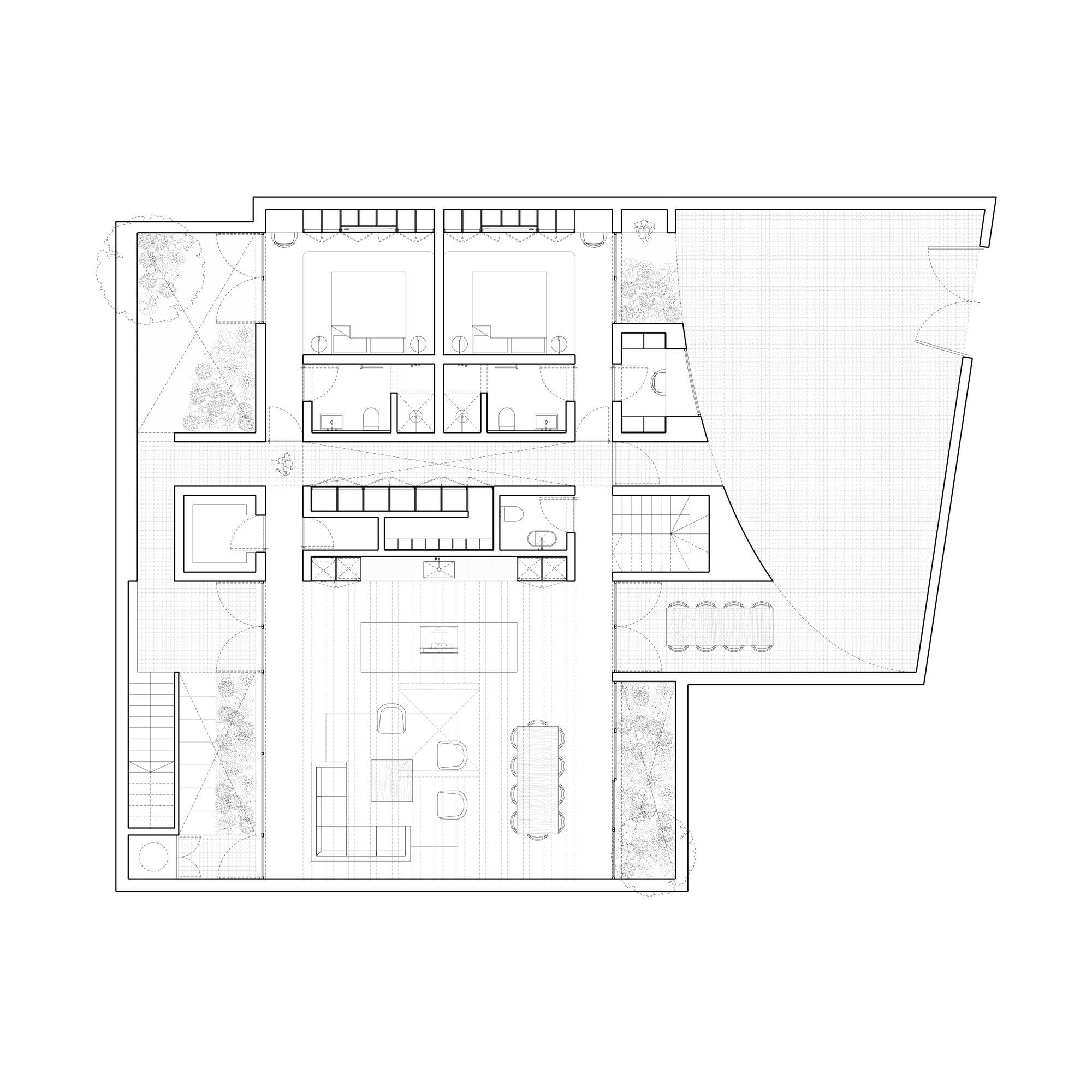
Khan House
- Saharanpur, India, 2022
- New Build
Khan House named after the family’s name is a reimagining of the family home. Retaining the same building footprint, Khan House is an exercise in giving value to an existing building. The project situates itself in the heart of Saharanpur, creating its own microcosm within, the house frames itself towards the sky blurring the boundary between inside and out. Carefully positioned courtyards give vibrancy and allow nature into the space, giving each space a catered experience.
